

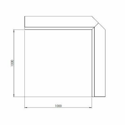
Keerwanden zijn robuuste bouwblokken om gemakkelijk je eigen border te creëren. De keerwanden zijn gemaakt van 2mm en 3mm dik cortenstaal. De keerwanden hebben een dubbel gezette boven rand van 4cm breed en een brede onderrand van 20cm. Door het gewicht van de grond op deze brede onderrand, blijft de keerwanden gemakkelijk staan en zal deze niet keren. Extra verbinders inwendig zijn hierdoor overbodig. Doordat er inwendig geen extra verbinders komen zijn de keerwanden ook uiterst geschikt als plantenbak voor het plaatsen van bomen. De keerwanden worden gemaakt uit Corten-A plaatmateriaal. Corten-A is de nummer één in zijn soort en heeft als eigenschap dat dit materiaal snel een mooie roestkleur krijgt, hierdoor zijn zure roestversnellers overbodig. Alle onderdelen worden ongeroest geleverd. Wanneer je deze blootstelt aan de buitenlucht krijgen deze binnen enkele weken al een mooie bruin/oranje roestkleur.
Dit product wordt gemaakt uit cortenstaal. Cortenstaal is een metaallegering dat bestaat uit ijzer en hieraan zijn koper, fosfor, silicium, nikkel en chroom toegevoegd. Deze metaalsoort heeft als unieke eigenschap dat het een zeer dichte oxidehuid (roest laag) vormt. Doorroesten is hierdoor onmogelijk. Door de dichte oxidehuid wordt het dieper liggende materiaal afgeschermd van zuurstof, hierdoor wordt de oxidatie sterkt vertraagt terwijl de corrosie zich wel voortzet. Dit zorgt voor de mooie oranje/bruine kleur. De cortenstalen producten worden ongeroest, in de grijze metaalkleur aangeleverd. De bruin/oranje roest laag vormt zich binnen enkele weken tot maanden, hier is geen behandeling voor nodig. Let op! Tijdens het roestproces kan het product afgeven.
Plaatsingsadvies
- Zorg voor een vlakke, stevige ondergrond. Indien dit niet zorgvuldig wordt gedaan, kunnen er spanningen in het product ontstaan die kunnen resulteren in schade aan het product.
- Zorg altijd voor voldoende ademruimte (minimaal 1 cm) rondom de keerwand om vochtopsluiting te voorkomen.
- Vul de bak met een laag kiezels van ongeveer 10cm hoog. Gebruik géén hydrokorrels.
- Leg over de kiezels een vochtdoorlatend anti -worteldoek. Let op! Leg het doek aan de randen minstens 10 cm omhoog voor een ideale werking.
- Bedek het anti-worteldoek met een laag luchtig grondmengsel afgestemd op de aan te brengen beplanting. Let op! De aarde in de bak mag nooit aangestampt worden, dit kan schade veroorzaken aan de bak.
Specificaties
Artikelnummer | 30481 |
Kleur | Corten |
Materiaal | Cortenstaal |
Verzenden & rotourneren
Meer informatie volgt binnenkort.
Keerwanden zijn robuuste bouwblokken om gemakkelijk je eigen border te creëren. De keerwanden zijn gemaakt van 2mm en 3mm dik cortenstaal. De keerwanden hebben een dubbel gezette boven rand van 4cm breed en een brede onderrand van 20cm. Door het gewicht van de grond op deze brede onderrand, blijft de keerwanden gemakkelijk staan en zal deze niet keren. Extra verbinders inwendig zijn hierdoor overbodig. Doordat er inwendig geen extra verbinders komen zijn de keerwanden ook uiterst geschikt als plantenbak voor het plaatsen van bomen. De keerwanden worden gemaakt uit Corten-A plaatmateriaal. Corten-A is de nummer één in zijn soort en heeft als eigenschap dat dit materiaal snel een mooie roestkleur krijgt, hierdoor zijn zure roestversnellers overbodig. Alle onderdelen worden ongeroest geleverd. Wanneer je deze blootstelt aan de buitenlucht krijgen deze binnen enkele weken al een mooie bruin/oranje roestkleur.
Dit product wordt gemaakt uit cortenstaal. Cortenstaal is een metaallegering dat bestaat uit ijzer en hieraan zijn koper, fosfor, silicium, nikkel en chroom toegevoegd. Deze metaalsoort heeft als unieke eigenschap dat het een zeer dichte oxidehuid (roest laag) vormt. Doorroesten is hierdoor onmogelijk. Door de dichte oxidehuid wordt het dieper liggende materiaal afgeschermd van zuurstof, hierdoor wordt de oxidatie sterkt vertraagt terwijl de corrosie zich wel voortzet. Dit zorgt voor de mooie oranje/bruine kleur. De cortenstalen producten worden ongeroest, in de grijze metaalkleur aangeleverd. De bruin/oranje roest laag vormt zich binnen enkele weken tot maanden, hier is geen behandeling voor nodig. Let op! Tijdens het roestproces kan het product afgeven.
Plaatsingsadvies
- Zorg voor een vlakke, stevige ondergrond. Indien dit niet zorgvuldig wordt gedaan, kunnen er spanningen in het product ontstaan die kunnen resulteren in schade aan het product.
- Zorg altijd voor voldoende ademruimte (minimaal 1 cm) rondom de keerwand om vochtopsluiting te voorkomen.
- Vul de bak met een laag kiezels van ongeveer 10cm hoog. Gebruik géén hydrokorrels.
- Leg over de kiezels een vochtdoorlatend anti -worteldoek. Let op! Leg het doek aan de randen minstens 10 cm omhoog voor een ideale werking.
- Bedek het anti-worteldoek met een laag luchtig grondmengsel afgestemd op de aan te brengen beplanting. Let op! De aarde in de bak mag nooit aangestampt worden, dit kan schade veroorzaken aan de bak.
Specificaties
Artikelnummer | 30481 |
Kleur | Corten |
Materiaal | Cortenstaal |
Verzenden & rotourneren
Meer informatie volgt binnenkort.